Adatlap a következőhöz: Montini Bingo Zinc 164

Típus 2011-2016 Europe EN

Kapja meg a PDF adatlapot a postafiókjába!

  • Eredeti gyártói adatlap
  • További információ
  • részletes adatok

*Felhasználási feltételek

A LECTURA GmbH cég adatvédelmi szabályzata érvényes, amely további információkat is tartalmaz az adatai módosítási, törlési és blokkolási lehetőseiről.

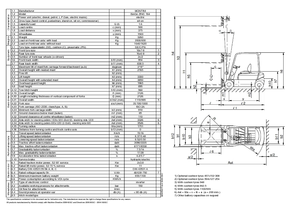
Elektromos targoncák Montini Bingo Zinc 164



Mutassa a részletes specifikációt